Проект Большой Московской и ЛОС будет готов к 15 апреля
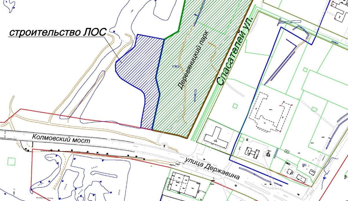
По муниципальному контракту к 15 апреля должна быть готова проектно-сметная документация на строительство продолжения Большой Московской улицы до улицы 20 Января с реконструкцией улицы 20 Января и выходом на Деревяницкий
По муниципальному контракту к 15 апреля должна быть готова проектно-сметная документация на строительство продолжения Большой Московской улицы до улицы 20 Января с реконструкцией улицы 20 Января и выходом на Деревяницкий мост.
Об этом рассказал председатель городского комитета архитектуры и градостроительства Евгений Жилин на встрече с общественным советом администрации города. По его словам, вдоль улицы расположатся ливневые стоки для отведения воды. Это тоже будет спроектировано. Такое требование сейчас существует для всех современных строящихся дорог.
Все стоки будут выведены в локальные очистные сооружения (ЛОС), проектно-сметную документацию на которые тоже в настоящее время разрабатывают. Очистные сооружения расположат рядом с Колмовским мостом и Деревяницким парком.
Начать строительство продолжения Большой Московской улицы планируют в 2023-2024 годах.
Фото: Управление по работе со СМИ администрации Великого НовгородаПоследние новости

ОБЩЕСТВЕННЫЙ СОВЕТ ПРИ ФАС ОБСУДИЛ ИТОГИ РАБОТЫ ВЕДОМСТВА ЗА 2024 ГОД
Этот и другие вопросы вошли в повестку первого в этом году заседания общественного совета при службе Заместитель руководителя ФАС России Андрей Цыганов выступил с информацией об итоговом докладе к расширенной коллег
В парке «Красное поле» оформят сеть экотропинок из природного вторсырья
Природный парк «Красное поле» продолжает меняться. Недавно здесь завершили работы по вырубке сорной поросли и очистке территории от порушенных стихией и старых деревьев, теперь же ведётся их уборка и вывоз.
Новгородские места могут попасть в топ достопримечательностей России
Туристические объекты и пространства Новгородской области участвуют в конкурсе достопримечательностей России «От южных морей до полярного края».

Преобразователь частоты
Все преобразователи проходят контроль и имеют сертификаты с гарантией